Laboratorio in vendita

Caserta, Viale Enrico Mattei - Caserta Sud
1 locale 1 locale
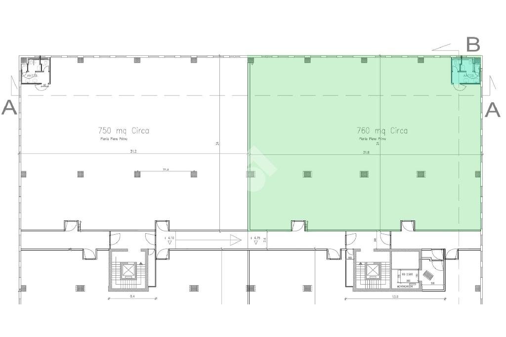
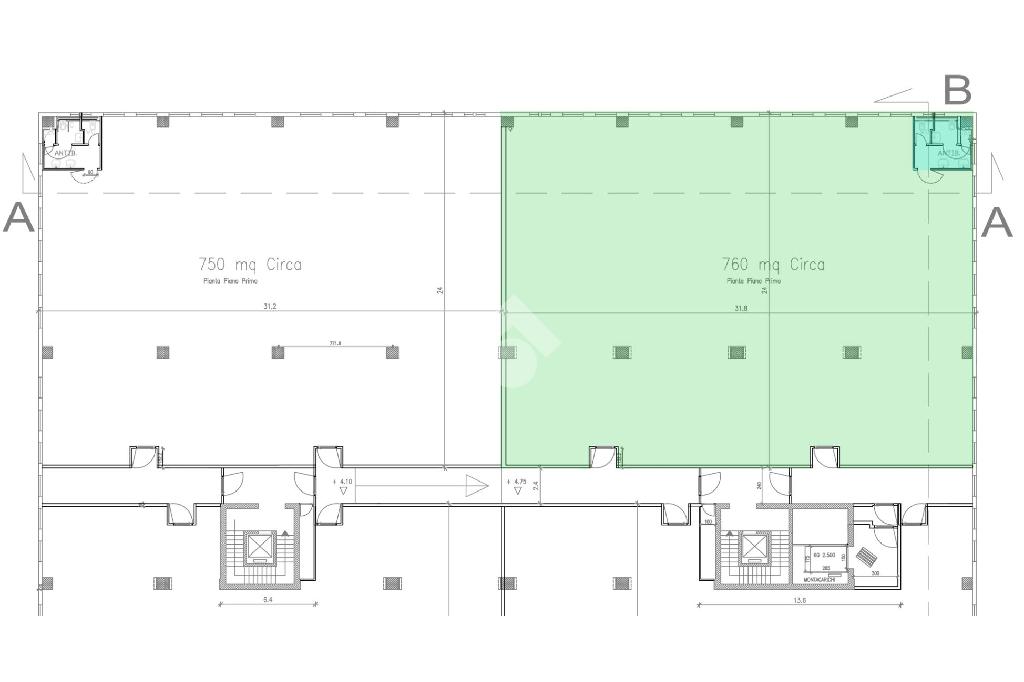
760 Mq 760 Mq
2 bagni 2 bagni

Laboratorio in vendita

Caserta, Viale Enrico Mattei - Caserta Sud

Questo immobile appartiene ad un'unità principale con metratura più ampia

Descrizione annuncio

INCENTIVI ZONA ZES - Situato nella zona industriale di Caserta l'immobile costruito nel 2005 beneficia di un contesto dinamico e ben servito, questo capannone in locazione offre una superficie di 760 mq al piano primo. Un ampio parcheggio condominiale di 3000 mq garantisce comodità per dipendenti e visitatori e per le operazioni di carico e scarico. L'immobile è dotato di ascensore e montacarichi, facilitando il trasporto di merci e persone al piano. Pavimenti in calcestruzzo con trattamento al quarzo lisciato, tamponature in cemento armato vibrato da 25 cm, infissi taglio termico con vetro riflettente a termo camera. I solai hanno un sovraccarico utile pari a 600 Kg/mq + 150 Kg/mq. Altezza interna 2.85. La posizione è particolarmente vantaggiosa: a soli 3 km dal casello autostradale Caserta Nord, a 4 da Caserta Sud e a 500 metri dalla stazione ferroviaria. La presenza di un servizio di guardiania notturna assicura tranquillità e sicurezza per tutte le attività svolte. La struttura è ideale per attività che necessitano di ampi spazi e facilità di accesso.

Mostra tutto

Nelle vicinanze

Trasporto pubblico Trasporto pubblico
stazione di Caserta
stazione di Caserta
810 m
Caserta
Caserta
740 m
Caserta, Casagiove
Caserta, Casagiove
1,6 Km
Recale
Recale
1,4 Km
Ricariche auto elettriche Ricariche auto elettriche
Sede Enel Caserta | EnelX
350 m
Stazione di Caserta | Enelx
910 m
Caserta Acquaviva | EnelX
1,1 Km
Caserta Ferrarecce | EnelX
2,0 Km
Caserta Laviano | EnelX
2,3 Km
Scuole Scuole
Scuole
530 m
Rettorato
530 m
Università della Campania "Luigi Vanvitelli"
540 m
Università degli Studi della Campania "Luigi Vanvitelli"
950 m
Scuole
1,2 Km
Farmacia Farmacia
Farmacia Odierna
1,2 Km
Farmacia
1,2 Km
Farmacia Fugaro
1,6 Km
Farmacia San Michele
1,7 Km
Barca
2,9 Km
Ospedali Ospedali
Clinica Villa del Sole
760 m
ASL Caserta Palazzo della salute
2,2 Km
Pronto Soccorso Ospedale "Sant'Anna e San Sebastiano"
2,7 Km
Azienda Ospedaliera di Caserta Sant'Anna e San Sebastiano
2,7 Km
Ospedali
2,7 Km
Supermercati Supermercati
EuroSpin Caserta
490 m
Famila
640 m
Supermercati
1,2 Km
Deco
1,3 Km
Supermercato "MD"
1,5 Km
Negozi Negozi
La Casa del Pane
1,1 Km
Panificio Fusco
1,1 Km
Il forno
1,2 Km
NewHope Store
1,5 Km
I'M Boutique Uomo
1,5 Km
Bar Bar
Caffetteria Vanvitelli
850 m
Bar
970 m
Antica Caffetteria La Reggia
1,2 Km
Serao
1,2 Km
Gran Caffè Margherita
1,2 Km
Ristoranti Ristoranti
Ristorante Le Colonne
740 m
Le tre farine
1,1 Km
Ristoranti
1,2 Km
Prezzemolo
1,5 Km
Dolci&Fornelli Mungiguerra
1,5 Km
Mostra tutto

Caratteristiche

Rif.:
61130763
Piano:
1 di 4 con ascensore (Piano medio)
Posti auto:
10
Condizionamento:
Assente
Ascensore:
Riscaldamento:
Assente
Mostra tutto
Prezzo Prezzo
€ 836.000
Rata mutuo Rata mutuo
€ 3.942 / mese
Spese annue Spese annue
€ 0
Anche in affitto a
Proponi il tuo prezzoProponi il tuo prezzo

Altre caratteristiche

Descrizione dei locali
Bagno Con Finestra

Classe Energetica

D
D
D
D
D
D
D
D
D
EP globale non rinnovabile:
123.00 kW h/m² anno
EP invernale del fabbricato:
EP estiva del fabbricato:
Anno di costruzione:
2005
Riscaldamento:
Assente

Ti interessa visionare l'immobile?

Fissa un appuntamento  Fissa un appuntamento

Richiedi informazioni

Clicca su Leggi per aprire l'informativa
* Questi campi sono obbligatori

Calcola il tuo mutuo

Semplice e senza impegno
Anticipo

( % )
Mutuo

( % )

pochi semplici passi

inserisci i tuoi dati
Questionario completato
Grazie per aver richiesto un appuntamento senza impegno con un nostro Consulente del Credito e Assicurativo.

Hai inserito correttamente tutti i dati necessari e a breve riceverai una e-mail con un link da convalidare per inviare i tuoi dati.
Affiliato
Sorrentino Francesco D.I.
Via Giovanni Battista Novelli, 26 81025 Marcianise (CE)

Il nostro staff


  • Lucia Allegretto
    Coordinatrice

  • Emanuela Riccardi
    Collaboratrice

  • Francesco Sorrentino
    Affiliato
Via Giovanni Battista Novelli, 26 81025 Marcianise (CE)
Zona: Marcianise
Mostra su mappa
Orari: 09:30-13:00 / 15:00 - 19:30
Affiliato
Sorrentino Francesco D.I.
Via Giovanni Battista Novelli, 26 81025 Marcianise (CE)

2025 Tecnocasa Franchising S.p.A. - P. IVA 08365160152 - Via Monte Bianco 60/A 20089 Rozzano (MI). Ogni agenzia ha un proprio titolare ed è autonoma. Privacy policy | Policy utilizzo | Cookie policy