Negozio in affitto

Valle Di Maddaloni, Via Variante Sannitica - Variante
€ 4.000 / mese
1 locale 1 locale
640 Mq 640 Mq
2 bagni 2 bagni

Negozio in affitto

Valle Di Maddaloni, Via Variante Sannitica - Variante

Descrizione annuncio

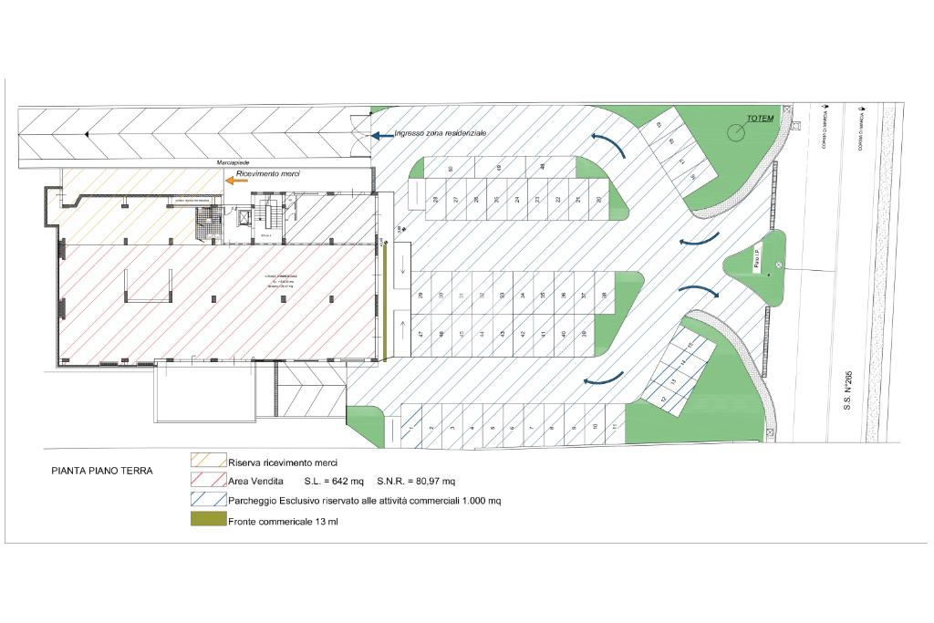
Nel comune di Valle di Maddaloni, sulla Variante verso la stazione dell'alta velocità, si propone in locazione un ampio negozio di 640 mq, situato al piano terra. L'immobile, attualmente in costruzione, sarà pronto a fine ottobre '26 e offre un ambiente versatile, ideale per attività di ristorazione o vendita al dettaglio. Il locale è composto da un unico spazioso ambiente, due bagni e due balconi, garantendo funzionalità e comfort. Un punto di forza è la presenza di una canna fumaria, che lo rende particolarmente adatto per attività gastronomiche. L'ampio parcheggio di 1000 mq, con 50 posti auto, assicura comodità per i clienti. Inoltre, l'immobile è dotato di aria condizionata e un giardino, offrendo un ambiente accogliente. La posizione strategica, nei pressi dell'acquedotto Carolino e con facile accesso verso Sant'Agata, Valle, Maddaloni e Telese, rende questo negozio un'opportunità interessante per chi cerca visibilità e comodità.

Mostra tutto

Nelle vicinanze

Trasporto pubblico Trasporto pubblico
stazione di Maddaloni Superiore
stazione di Maddaloni Superiore
2,4 Km
Valle di Maddaloni
Valle di Maddaloni
2,6 Km
Viale degli Archi
Viale degli Archi
840 m
Via Sannitica 1
Via Sannitica 1
1,4 Km
Scuole Scuole
IC S. Giovanni Bosco
1,4 Km
Istituto Comprensivo Maddaloni 2 Valle
1,4 Km
Farmacia Farmacia
Farmacia
1,4 Km
Supermercati Supermercati
Ottimo Market
1,2 Km
Sigma
1,3 Km
Negozi Negozi
Negozi
2,9 Km
Bar Bar
Lounge Bar Empire
1,1 Km
Bar Centrale
2,8 Km
Bar della Valle
2,9 Km
Ristoranti Ristoranti
Chicken Valle
150 m
Agriturismo Miravalle
1,1 Km
La Baita - Steak House
1,7 Km
Bar Pizzeria La Quercia
2,7 Km
Ristorante Martone
2,7 Km
Mostra tutto

Caratteristiche

Rif.:
61183036
Piano:
Terra di 3
Totale piani:
3
Posti auto:
40
Balconi:
2
Condizionamento:
Autonomo
Mostra tutto
Prezzo Prezzo
€ 4.000 / mese
Spese annue Spese annue
€ 0

Classe Energetica

D
D
D
D
D
D
D
D
D
EP globale non rinnovabile:
123.00 kW h/m² anno
EP invernale del fabbricato:
EP estiva del fabbricato:
Anno di costruzione:
2025
Riscaldamento:
Autonomo
Tipo impianto:
A radiatori
Tipo alimentazione:
Metano

Ti interessa visionare l'immobile?

Fissa un appuntamento  Fissa un appuntamento

Richiedi informazioni

Clicca su Leggi per aprire l'informativa
* Questi campi sono obbligatori
Affiliato
Sorrentino Francesco D.I.
Via Giovanni Battista Novelli, 26 81025 Marcianise (CE)

Il nostro staff


  • Lucia Allegretto
    Coordinatrice

  • Francesco Sorrentino
    Affiliato
Via Giovanni Battista Novelli, 26 81025 Marcianise (CE)
Zona: Marcianise
Mostra su mappa
Orari: 09:30-13:00 / 15:00 - 19:30
Affiliato
Sorrentino Francesco D.I.
Via Giovanni Battista Novelli, 26 81025 Marcianise (CE)

2026 Tecnocasa Franchising S.p.A. - P. IVA 08365160152 - Via Monte Bianco 60/A 20089 Rozzano (MI). Ogni agenzia ha un proprio titolare ed è autonoma. Privacy policy | Policy utilizzo | Cookie policy