Terreno in vendita

Rocchetta E Croce, Strada statale
€ 25.000
1 locale 1 locale
12000 Mq 12000 Mq

Terreno in vendita

Rocchetta E Croce, Strada statale

Descrizione annuncio

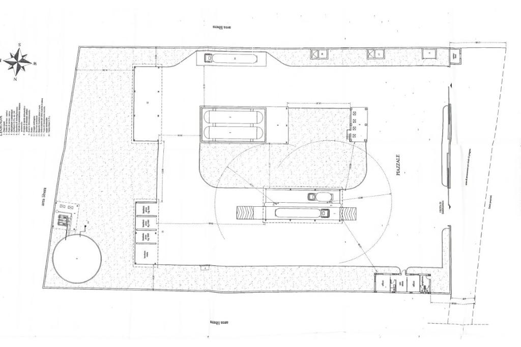
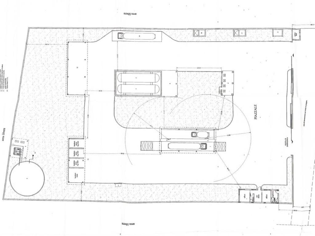
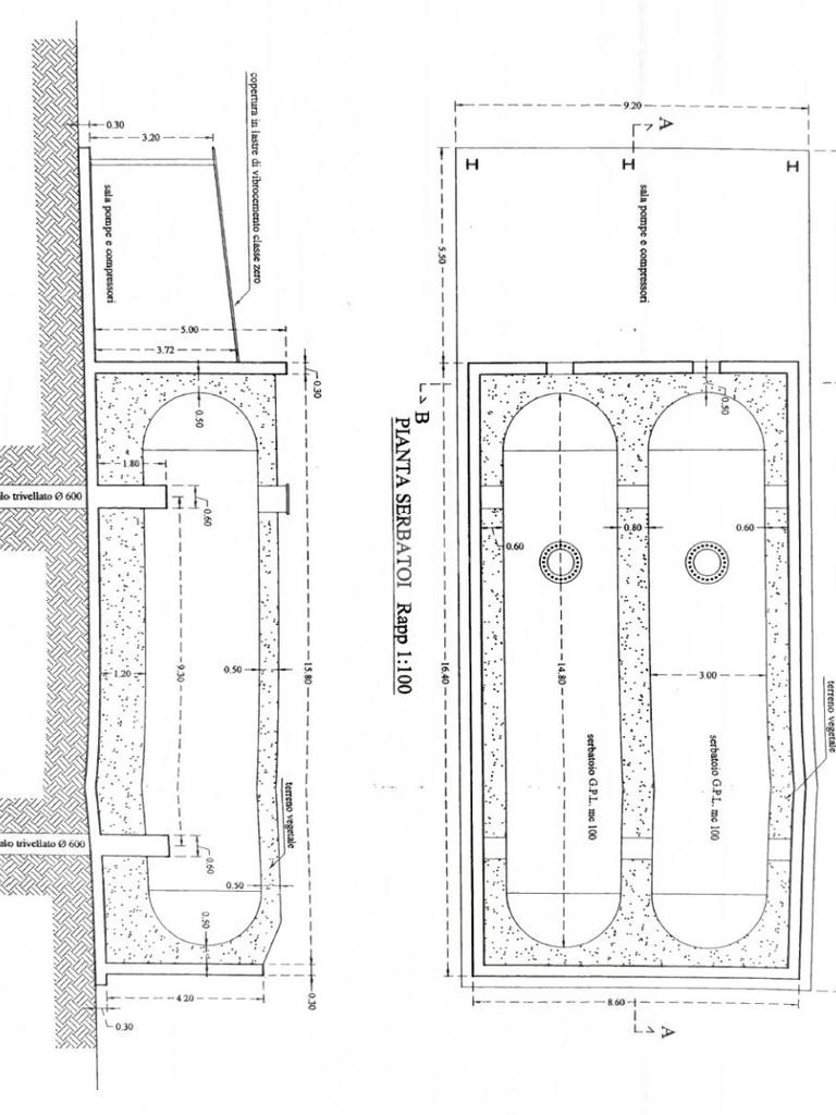
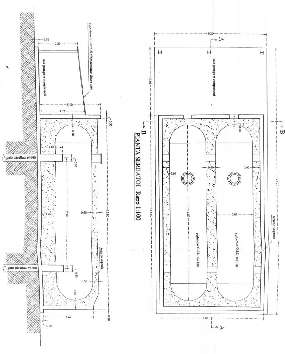
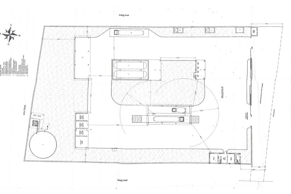
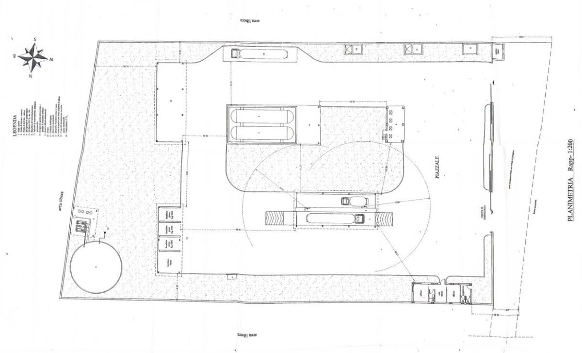
Nel comune di Rocchetta e Croce è disponibile un'opportunità unica. Si tratta di un terreno di 12.000 mq, che offre ampie possibilità di utilizzo grazie alla presenza di manufatti da completare. L'immobile, costruito nel 2000 parte come deposito GPL, ora cannibalizzato, che offre progetti approvati a vari livelli, aprendo la strada a diverse possibilità di sviluppo. Questa caratteristica rende la proprietà particolarmente interessante per chi desidera intraprendere nuove iniziative o espandere attività esistenti. La combinazione di terreno agricolo e strutture già esistenti offre un potenziale significativo per chi è alla ricerca di un investimento versatile e strategicamente posizionato.

Mostra tutto

Nelle vicinanze

Trasporto pubblico Trasporto pubblico
Riardo-Pietramelara
Riardo-Pietramelara
2,5 Km
Riardo - Pietramelara
Riardo - Pietramelara
2,5 Km
Scuole Scuole
Scuole
2,3 Km
Negozi Negozi
Alimentari Izzo
2,3 Km
Bar Bar
Bar Gelateria
2,3 Km
Ristoranti Ristoranti
Ristorante dal Siciliano
2,2 Km
Ristoranti
2,4 Km
Mostra tutto

Caratteristiche

Rif.:
61159041
Piano:
Terra
Condizionamento:
Autonomo
Ascensore:
No
Riscaldamento:
Autonomo
Libero:
Mostra tutto
Prezzo Prezzo
€ 25.000
Rata mutuo Rata mutuo
€ 118 / mese
Spese annue Spese annue
€ 0
Proponi il tuo prezzoProponi il tuo prezzo

Classe Energetica

Questo immobile è esente da classe energetica
Anno di costruzione:
2000
Riscaldamento:
Autonomo
Tipo impianto:
A stufa
Tipo alimentazione:
Metano

Ti interessa visionare l'immobile?

Fissa un appuntamento  Fissa un appuntamento

Richiedi informazioni

Clicca su Leggi per aprire l'informativa
* Questi campi sono obbligatori

Calcola il tuo mutuo

Semplice e senza impegno
Anticipo

( % )
Mutuo

( % )

pochi semplici passi

inserisci i tuoi dati
Questionario completato
Grazie per aver richiesto un appuntamento senza impegno con un nostro Consulente del Credito e Assicurativo.

Hai inserito correttamente tutti i dati necessari e a breve riceverai una e-mail con un link da convalidare per inviare i tuoi dati.
Affiliato
Sorrentino Francesco D.I.
Via Giovanni Battista Novelli, 26 81025 Marcianise (CE)

Il nostro staff


  • Lucia Allegretto
    Coordinatrice

  • Francesco Sorrentino
    Affiliato
Via Giovanni Battista Novelli, 26 81025 Marcianise (CE)
Zona: Marcianise
Mostra su mappa
Orari: 09:30-13:00 / 15:00 - 19:30
Affiliato
Sorrentino Francesco D.I.
Via Giovanni Battista Novelli, 26 81025 Marcianise (CE)

2026 Tecnocasa Franchising S.p.A. - P. IVA 08365160152 - Via Monte Bianco 60/A 20089 Rozzano (MI). Ogni agenzia ha un proprio titolare ed è autonoma. Privacy policy | Policy utilizzo | Cookie policy